Wentworth Rd House by Edward Szewczyk Architects

  
we_210214_01
we_210214_03
we_210214_04
we_210214_05
we_210214_07
we_210214_06
Project description
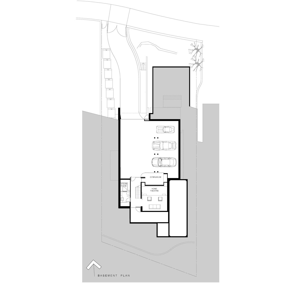
This building takes full advantage of being on the sunny side of the street. Where sun access and vistas to Sydney Harbour are the same you have to embrace it. Three levels of the building topped with a roof terrace create dramatic composition above the street that is controlled by interplay of horizontal elements. Unusually for houses in the surrounding suburb, part of the outdoor functions are in the street frontage and above the street, rather than being hidden behind high fences. The Ground Floor is partially suspended. Connecting garden stairs and terraces are sandstone slabs lightly supported to emphasise position elevated above the ground levels.
The composition of the rear garden is controlled by the dominant presence of an old gum tree providing protected habitat for birds and with its form displaying beautiful shapes and colours of the trunk. The main Family Area at the ground floor level is positioned to benefit from both: distant northern views towards the harbor and intimate views to the gumtree. With the change of lighting, the distant views dominate during the daytime and intimacy of the gumtree takes over in the evenings.
External sandstone slabs change internally to much finer sandstone for the floor and coarse sandstone of wall cladding relates to the entry point. Timber used internally counterbalances stone finishes, slick metal cladding to Master Bedroom and solid steel plates to roof terrace. The building displays large transparency, while maintaining sufficient mass to provide feeling of sound shelter. Simplicity of spaces is enriched by fine detailing of timber and steel elements.
we_210214_01 we_210214_02 we_210214_03 we_210214_04 we_210214_05 we_210214_06 we_210214_07 we_210214_08 we_210214_09 we_210214_10 we_210214_11 we_210214_12
Design: Edward Szewczyk Architects
Photography: Justin Alexander
 
 
Dr. EMAD HANI ISMAEEL
 
                 Ph.D. in Technologies for the Exploitation
                 of the Built Heritage .
                 Senior Lecturer in the Dept. of Architecture
                 College of Engineering , University of Mosul 
                 Mosul - Iraq .
 
E-mail:        emadhanee@yahoo.com
                   emadhanee@gmail.com
                   http://emadhani.blogspot.com/
Tel :           +964 (0)770 164 93 74

 

تعليقات