Sevilla, Spain
Facultad de Ciencias de la Educación
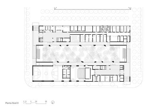
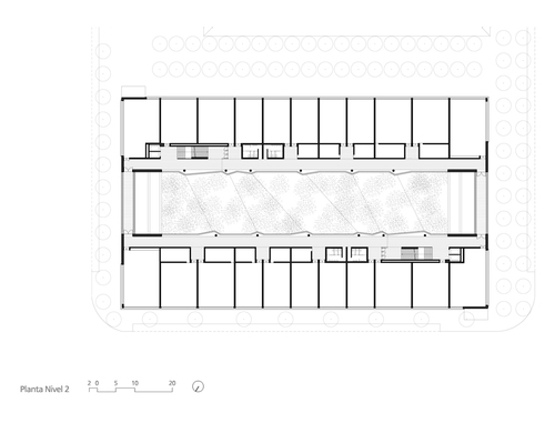
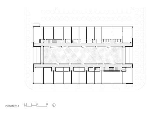
La necesidad de albergar un programa con usos de diversa índole, buscando para cada uno su especificidad y su dimensión más adecuada, a motivado la necesidad de generar dos órdenes yuxtapuestos que organizan la estructura del nuevo edificio. Por un lado, dos edificaciones de cuatro plantas de altura y ancho de crujía de 19.50 m., dispuestas en dirección de la mayor dimensión de la parcela, que alberga los usos más representativos y las aulas, generando un patio en su interior; y por otro una estructura más arbitraria y de crujía más reducida – 10.00 m. – de dos plantas de altura que se posa sobre el anterior generando un umbráculo sobre el patio y que alberga los departamentos.
La fachada, continua, y revestida del mismo material unifica el todo el conjunto,
Un perfil fácilmente reconocible y una volumetría compleja y variada dotan al edificio de un carácter muy singular en consonancia con su función de edificio público confiriéndole una presencia que pueda destacarse de los edificios residenciales colindantes.
La entrada principal del edificio se realiza desde la confluencia de las calles Miguel Rodríguez Piñero y Presidente Cárdenas, próxima al resto de instalaciones universitarias de la zona. Una entrada de carácter más secundario se sitúa en la diagonal opuesta a la principal, próxima a la zona de mayor actividad comercial. Junto a ésta se sitúa la guardería, con acceso y volumen independiente, que disfruta de un gran espacio libre de juegos – el situado entre la Nave del Paraguas y el nuevo edificio -.
La disposición contrapuesta de los accesos, además de permitir un uso diferenciado, generan una tensión diagonal entre ellos que propicia el recorrido interior a través del jardín. El patio central se convierte así en el nexo de unión y corazón del edificio.
Dr. EMAD HANI ISMAEEL
Ph.D. in Technologies for the Exploitation
of the Cultural Heritage .
Senior Lecturer in the Dept. of ArchitectureE-mail: emadhanee@yahoo.com
College of Engineering , University of Mosul
Mosul - Iraq .
Web Site: http://sites.google.com/site/emadhanee/
Tel : +964 (0)770 164 93 74















تعليقات
إرسال تعليق