Ewha Womans University
© André Morin / DPA / Adagp. Pubblicata il 01 Giugno 2012.
Flying is the best way to reach the shores of Seoul Ewha University's new building (founded in 1886, Ewha welcomes 22.000 female students and is ranked as one of the best universities in the world), thought and realised by Dominique Perrault, as a result of an international architecture competition organised in 2003, and inaugurated on April 29th 2008.
© André Morin / DPA / Adagp. Pubblicata il 01 Giugno 2012.
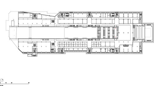
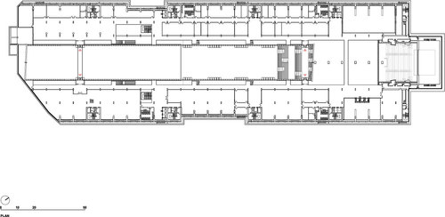
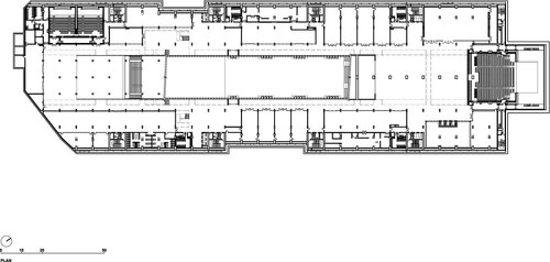
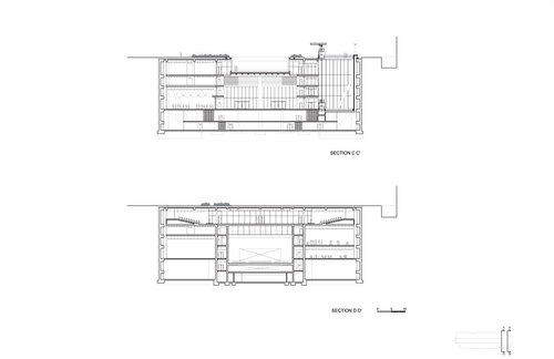
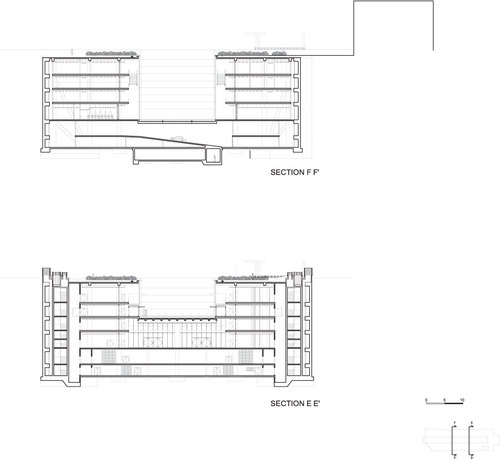
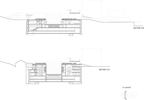
A landscape then, more than an architecture work, located in the midst of Seoul's university area. A campus valley where nature, sport grounds, event locations and educational buildings mix, intermingle and follow one another. A long asphalted strip, delineated at one end by a race track, and completely surrounded by nature. Arranged nature where pear trees and topiary reign. Black asphalt, red race track, green nature and finally the white brightness of the valley appears. A valley, which is bravely drawn in the ground, slides down along a gentle slope. At the other end of the valley, the slope becomes a huge stairway which can be used as an open air amphitheatre if necessary.
Dr. EMAD HANI ISMAEEL
© André Morin / DPA / Adagp. Pubblicata il 01 Giugno 2012.
At the very heart of the valley, a dreamlike immersion takes place. Opposed to the outdoor world, a subtle and serene universe appears suddenly. Classrooms and libraries, amphitheatres and auditoriums, shops and movement… Everything follows up without any lack of natural light. Perrault is prone to buried, excavated, nestled places (the French National Library in Paris, the Velodrome and Olympic swimming pool in Berlin, both realised, the studies for the Kansai Library in Japan and the Cultural Centre in Santiago de Compostela, Spain…) Perrault has the desire, physically speaking, to appropriate the territory, to mingle the construction with the ground, the desire to exploit to its paroxysm the idea that "concept and matter have to grapple one with another".
© André Morin / DPA / Adagp. Pubblicata il 01 Giugno 2012.
At Ewha University, Perrault put one more time in action: words (idea, concept, abstraction, geometry, strategy, tension, fusion, freedom, simplicity, evidence…), principles (physics, mechanics, dimension…) and commitments (urban concerns, creation of a location and not only of a building, refusal of formalism, and disappearance of architecture…) which best qualify his architecture.
© André Morin / DPA / Adagp. Pubblicata il 01 Giugno 2012.
© André Morin / DPA / Adagp. Pubblicata il 01 Giugno 2012.
© André Morin / DPA / Adagp. Pubblicata il 01 Giugno 2012.
© André Morin / DPA / Adagp. Pubblicata il 01 Giugno 2012.
© André Morin / DPA / Adagp. Pubblicata il 01 Giugno 2012.
© Suk Joon YOON / DPA / Adagp. Pubblicata il 01 Giugno 2012.
© Suk Joon YOON / DPA / Adagp. Pubblicata il 01 Giugno 2012.
© Suk Joon YOON / DPA / Adagp. Pubblicata il 01 Giugno 2012.
© André Morin / DPA / Adagp. Pubblicata il 01 Giugno 2012.
© André Morin / DPA / Adagp. Pubblicata il 01 Giugno 2012.
© André Morin / DPA / Adagp. Pubblicata il 01 Giugno 2012.
© André Morin / DPA / Adagp. Pubblicata il 01 Giugno 2012.
© André Morin / DPA / Adagp. Pubblicata il 01 Giugno 2012.
© André Morin / DPA / Adagp. Pubblicata il 01 Giugno 2012.
© André Morin / DPA / Adagp. Pubblicata il 01 Giugno 2012.
© Dominique Perrault Architecture . Pubblicata il 01 Giugno 2012.
© Dominique Perrault Architecture . Pubblicata il 01 Giugno 2012.
© Dominique Perrault Architecture . Pubblicata il 01 Giugno 2012.
© Dominique Perrault Architecture . Pubblicata il 01 Giugno 2012.
© Dominique Perrault Architecture . Pubblicata il 01 Giugno 2012.
© Dominique Perrault Architecture . Pubblicata il 01 Giugno 2012.
© Dominique Perrault Architecture . Pubblicata il 01 Giugno 2012.
© Dominique Perrault Architecture . Pubblicata il 01 Giugno 2012.
© Dominique Perrault Architecture . Pubblicata il 01 Giugno 2012.
© Dominique Perrault Architecture . Pubblicata il 01 Giugno 2012.
© Dominique Perrault Architecture . Pubblicata il 01 Giugno 2012.
© Dominique Perrault Architecture . Pubblicata il 01 Giugno 2012.
© Dominique Perrault Architecture . Pubblicata il 01 Giugno 2012.
Dr. EMAD HANI ISMAEEL
Ph.D. in Technologies for the Exploitation
of the Cultural Heritage .
College of Engineering , University of Mosul
Mosul - Iraq .
Web Site: http://sites.google.com/site/emadhanee/
Tel : +964 (0)770 164 93 74
































تعليقات
إرسال تعليق