
jan 21, 2014
henning larsen architects angles the new moesgard museum
henning larsen architects angles the new moesgard museum
all images courtesy of henning larsen architects
henning larsen architects has completed the construction of the new 'moesgård museum' in aarhus, denmark, a regional institution which also serves as dedicated center for archaeology and ethnography. the design provides the area and its people with a striking new landmark, offering a fresh perspective on danish history from the stone age to the middle ages.

a sloping roof plane grows out of the terrain forming an external area of recreation
photo by jens lindhe
the scheme is defined by a sloping roof plane which grows out of the terrain creating an expansive external area of recreation. in summer the space will form an area for picnics and outdoor lectures, while during the snowy winter months the angled canopy will be transformed into a toboggan run. the integrated structure reads as a natural mound in the danish landscape, fusing nature and architecture.

photo by jens lindhe
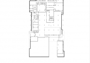
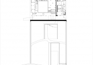
the terraced landscape is continued to the interior, where volumes reflect archeological excavations, allowing visitors to gradually uncover the museum. the project will provide a framework for innovative forms of presentation and communication, with spaces throughout the design crafted to allow for insight, reflection and interaction.

the structure reads as a natural mound in the danish landscape, fusing nature and architecture
photo by jens lindhe
exhibition galleries will offer areas dedicated to research projects from the nearby university of aarhus. in addition, the building will accommodate a gift shop, café, educational and conference facilities and a 250 seat auditorium. 'moesgård museum' is currently preparing new exhibitions and will open to the public in october 2014.

the low-profile structure emerges organically from the landscape
photo by jens lindhe

internal volumes reflect archeological excavations, allowing visitors to gradually uncover the museum
photo by jens lindhe

stairway descending into the museum's interior
photo by jens lindhe

photo by jens lindhe

the expansive roof terrace
photo by jens lindhe

'moesgard museum' illuminated at night
photo by jens lindhe
project info:
location: aarhus, denmark
client: moesgård museum
gross floor area: 16,000 sqm (172,222 sqf)
construction: 2010-2013
type of assignment: first prize in invited competit
client: moesgård museum
gross floor area: 16,000 sqm (172,222 sqf)
construction: 2010-2013
type of assignment: first prize in invited competit
Dr. EMAD HANI ISMAEEL
Ph.D. in Technologies for the Exploitation
of the Built Heritage .
Senior Lecturer in the Dept. of Architecture
College of Engineering , University of Mosul
Mosul - Iraq .
E-mail: emadhanee@yahoo.com
Web Site: http://sites.google.com/site/emadhanee/
Tel : +964 (0)770 164 93 74
تعليقات
إرسال تعليق